The Piana
The Piana
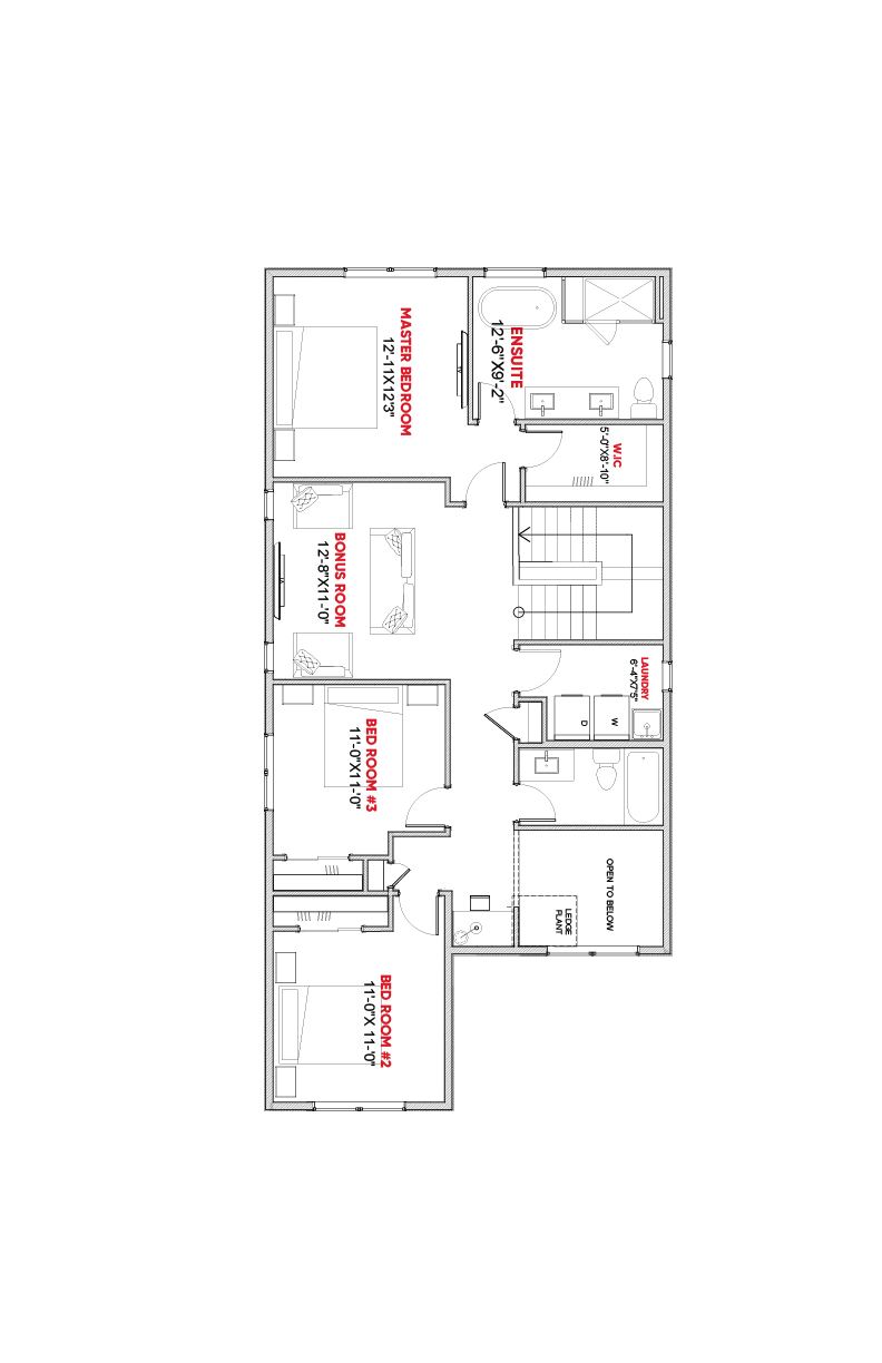
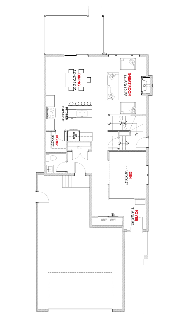
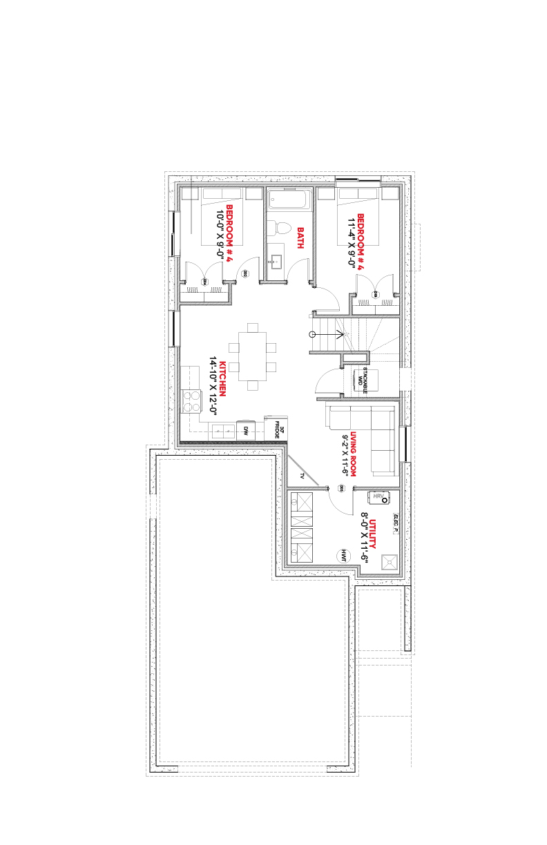
2 Storey, 2,075 sq.ft.
Features:
- Custom Design
- 2 Bedroom Legal Suite
- Free Standing Tub
- Quartz Finishing Throughout
- 5 Piece Ensuite Bathroom
- Oversized Walk In Closet

972 sq.ft.
1,103 sq.ft.
757 sq.ft.
