galera
Galera
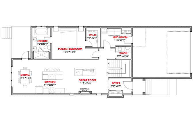
Bungalow, 2,133 sq.ft.
Features:
- Custom Design
- 3 Bedrooms
- 3 Bathrooms
- Great Room
- Foyer

1,151 sq.ft.
982 sq.ft.

Bungalow, 2,133 sq.ft.
Features:
